Welcome To Weiguan Electric Co., Ltd.

Pole Mounted Load Break Switch

Pole Mounted Load Break Switch

0.00
0.00
  
Product Description


Description

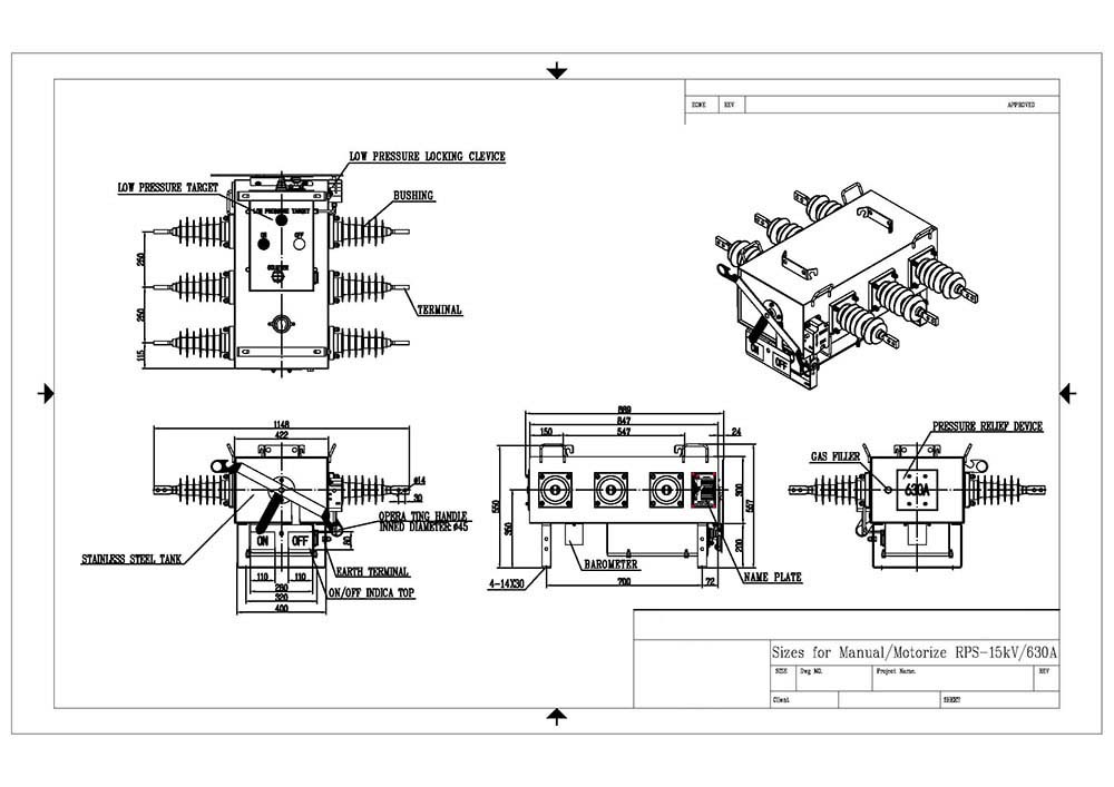
Pole mounted SF6 Gas insulated load break switch (Pole mounted switch disconnector) type RPS-12/27/38-20 is suitable for the rated voltage up to 40.5kV,rated current 400A-630A, 50/60Hz power system.

Options:

E2/E3, Manual or remote control, CT/PT/VS , Gas pressure guage, Low pressure lockout, SCADA capabilities,etc.

15kV IEC/ANSI

27kV IEC/ANSI


38kV IEC/ANSI


Mobile APP software of 15kV auto recloser

Map guide&location Monitoring&Controlling

Setting & Modification Event Records

●Master software for Distribution Automation Management